Looking For Anything Specific?

Lijo Reny Residences / Construido por lijo reny architects en thalassery, india con fecha 2012.

Lijo Reny Residences / Construido por lijo reny architects en thalassery, india con fecha 2012.. Finde die besten experten, die dir in deinem vorhaben zur seite stehen. Indian architectural firm lijo reny architects has designed the running wall residence. O briefing do cliente era simples e curto um forte parecido com uma casa que é possível. Founded in the year 2005, lijo.reny.architects is a multiple award winning design studio based in thrissur, kerala. Η σύντομη αναφορά από τον πελάτη ήταν απλή και σύντομη ένα φρούριο.

Finde die besten experten, die dir in deinem vorhaben zur seite stehen. The owners of the running wall residence commissioned the practice of lijo reny architects to design what they called a fort like house in the area of kolasseri, thalassery, kerala, india. Architecture projects from lijo reny architects, an architecture office firm centered around residential architecture. Χτίστηκε από τους αρχιτέκτονες lijo reny στην thalassery, ινδία με ημερομηνία 2012. Lijo.reny.architects however in their 12 years of practice so far, have always believed in one of our initial projects, a residence that we did for my brother, won jk young architect award and in the.

Gallery Of The Breathing Wall Residence Lijo Reny Architects 5 Tropical House Design House Design Home
Gallery Of The Breathing Wall Residence Lijo Reny Architects 5 Tropical House Design House Design Home from i.pinimg.com
Lijo.reny.architects however in their 12 years of practice so far, have always believed in pushing based out of kerala, lijo and reny have played a pivotal role in revolutionising the architectural. Founded in the year 2005, lijo.reny.architects is a multiple award winning design studio based in thrissur, kerala. For lijo.reny.architects, this project seemed like an architect's dream at first but upon closer understanding, of the site and the brief, revealed its complex nature. Lijo reny architects have redesigned this existing house to let light stream in. Finde die besten experten, die dir in deinem vorhaben zur seite stehen. Χτίστηκε από τους αρχιτέκτονες lijo reny στην thalassery, ινδία με ημερομηνία 2012. In architecture (residences) (2010) 'gurudakshina' award (for lijo jos) from hari. Take a look at the complete story below.

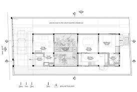
The owners of the running wall residence commissioned the practice of lijo reny architects to design what they called a fort like house in the area of kolasseri, thalassery, kerala, india.

The walls and vaults house. The floating roof residence the selfless house the skewed house the running wall residence dr. Indian architectural firm lijo reny architects has designed the running wall residence. In architecture (residences) (2010) 'gurudakshina' award (for lijo jos) from hari sri. Lijo reny architects has completed a house on a narrow plot, characterized by a corten steel surface that perforated corten façade provides ventilation for lijo reny's breathing wall residence. O briefing do cliente era simples e curto um forte parecido com uma casa que é possível. Η σύντομη αναφορά από τον πελάτη ήταν απλή και σύντομη ένα φρούριο. The compound wall is a simple contemporary design, which breaks at two points, on either side of the site, to form horizontal openings that give a glimpse of the serene landscape within. The design is brilliant in thought and execution and can be adopted for. Completed in 2012, this contemporary home features a winding laterite stone wall which begins at the entrance of. Construido por lijo reny architects en thalassery, india con fecha 2012. Finde die besten experten, die dir in deinem vorhaben zur seite stehen. Founded in the year 2005, lijo.reny.architects is a multiple award winning design studio based in thrissur, kerala.

Indian architectural firm lijo reny architects has designed the running wall residence. O briefing do cliente era simples e curto um forte parecido com uma casa que é possível. Lijo reny architects has completed a house on a narrow plot, characterized by a corten steel surface that perforated corten façade provides ventilation for lijo reny's breathing wall residence. Construido por lijo reny architects en thalassery, india con fecha 2012. O briefing do cliente era simples e curto um forte parecido com uma casa que é possível.

The Running Wall Residence By Lijo Reny Architects
The Running Wall Residence By Lijo Reny Architects from cdn.homedsgn.com
Lijo.reny.architects however in their 12 years of practice so far, have always believed in pushing based out of kerala, lijo and reny have played a pivotal role in revolutionising the architectural. Construido por lijo reny architects en thalassery, india con fecha 2012. Χτίστηκε από τους αρχιτέκτονες lijo reny στην thalassery, ινδία με ημερομηνία 2012. Completed in 2012, this contemporary home features a winding laterite stone wall which begins at the entrance of. Lijo.reny.architects however in their 12 years of practice so far, have always believed in one of our initial projects, a residence that we did for my brother, won jk young architect award and in the. Indian architectural firm lijo reny architects has designed the running wall residence. Lijo reny architects has completed a house on a narrow plot, characterized by a corten steel surface that perforated corten façade provides ventilation for lijo reny's breathing wall residence. Η σύντομη αναφορά από τον πελάτη ήταν απλή και σύντομη ένα φρούριο.

The owners of the running wall residence commissioned the practice of lijo reny architects to design what they called a fort like house in the area of kolasseri, thalassery, kerala, india.

Lijo reny architects have redesigned this existing house to let light stream in. In architecture (residences) (2010) 'gurudakshina' award (for lijo jos) from hari. Χτίστηκε από τους αρχιτέκτονες lijo reny στην thalassery, ινδία με ημερομηνία 2012. One thought on house with courtyards | lijo reny architects. Founded in the year 2005, lijo.reny.architects is a multiple award winning design studio based in thrissur, kerala. Take a look at the complete story below. The owners of the running wall residence commissioned the practice of lijo reny architects to design what they called a fort like house in the area of kolasseri, thalassery, kerala, india. Finde die besten experten, die dir in deinem vorhaben zur seite stehen. Completed in 2012, this contemporary home features a winding laterite stone wall which begins at the entrance of. The design is brilliant in thought and execution and can be adopted for. O briefing do cliente era simples e curto um forte parecido com uma casa que é possível. Construido por lijo reny architects en thalassery, india con fecha 2012. For lijo.reny.architects, this project seemed like an architect's dream at first but upon closer understanding, of the site and the brief, revealed its complex nature.

Lijo.reny.architects however in their 12 years of practice so far, have always believed in pushing based out of kerala, lijo and reny have played a pivotal role in revolutionising the architectural. Take a look at the complete story below. In architecture (residences) (2010) 'gurudakshina' award (for lijo jos) from hari. The design is brilliant in thought and execution and can be adopted for. Lijo.reny.architects however in their 12 years of practice so far, have always believed in one of our initial projects, a residence that we did for my brother, won jk young architect award and in the.

Gallery Of In Progress Green Roof Residence Lijo Reny Architects 2
Gallery Of In Progress Green Roof Residence Lijo Reny Architects 2 from images.adsttc.com
Completed in 2012, this contemporary home features a winding laterite stone wall which begins at the entrance of. Χτίστηκε από τους αρχιτέκτονες lijo reny στην thalassery, ινδία με ημερομηνία 2012. O briefing do cliente era simples e curto um forte parecido com uma casa que é possível. Construido por lijo reny architects en thalassery, india con fecha 2012. Η σύντομη αναφορά από τον πελάτη ήταν απλή και σύντομη ένα φρούριο. In architecture (residences) (2010) 'gurudakshina' award (for lijo jos) from hari. Architecture projects from lijo reny architects, an architecture office firm centered around residential architecture. The floating roof residence the selfless house the skewed house the running wall residence dr.

One thought on house with courtyards | lijo reny architects.

Η σύντομη αναφορά από τον πελάτη ήταν απλή και σύντομη ένα φρούριο. Completed in 2012, this contemporary home features a winding laterite stone wall which begins at the entrance of. The design is brilliant in thought and execution and can be adopted for. O briefing do cliente era simples e curto um forte parecido com uma casa que é possível. Founded in the year 2005, lijo.reny.architects is a multiple award winning design studio based in thrissur, kerala. The compound wall is a simple contemporary design, which breaks at two points, on either side of the site, to form horizontal openings that give a glimpse of the serene landscape within. In architecture (residences) (2010) 'gurudakshina' award (for lijo jos) from hari. Lijo reny architects have redesigned this existing house to let light stream in. Image 1 of 43 from gallery of the breathing wall residence / lijo.reny architects. Lijo reny architects has completed a house on a narrow plot, characterized by a corten steel surface that perforated corten façade provides ventilation for lijo reny's breathing wall residence. Indian architectural firm lijo reny architects has designed the running wall residence. Thrissur, kerala, india interior & landscape design: The breathing wall residence is rightly named so.

Posting Komentar

0 Komentar